Газовый камин Vero Design Nippon NI G6 H1
Газовый камин Vero Design Nippon NI G6 H1 – двухсторонняя встраиваемая модель. Выражает актуальные на сегодняшний день веяния в создании интерьеров в стиле хай-тек.
Особенности:
- Все модели данной марки выполнены в шикарном современном дизайне, со специальной технологией невидимого стекла и изготовлены в соответствии со всеми нормами безопасности и технологичности.
- Комфорт: для владельцев газовых каминов отпадает потребность в поиске и покупке сухих дров, надобность их складировать в помещении, отсутствует затрата времени на растопку камина и уборку золы в нем. Всегда чистое стекло каминной топки.
- Термодатчик в системе зажигания огня – блокирует подачу газа в каминную топку если нет возгорания в камине при его включении или если пламя в камине гаснет.
- Термодатчик в дымосборнике каминной топки – ТТВ, блокирует подачу газа в каминную топку если температура в дымосборнике превышает допустимый уровень нормального режима работы камина.
- Положение шиберной заслонки (модели Nippon®) дает команду на подачу или отключение газа.
- Инфракрасный пульт дистанционного управления с защитой от непроизвольного включения камина детьми.
- Газовое соединение (штекер) со встроенной системой безопасности, перекрывающее подачу газа при превышении допустимого уровня температуры в месте соединения.
- Галька на выбор: белая, серая или вулканическая входят в комплект – поленья и аксессуары являются опциями.
- Тип газа Магистральный (природный), Балонный (пропан)
- Газ-контроль Есть
- Диаметр дымохода, (мм) 350
- Материал корпуса: Сталь
- Материал топки: Нержавеющая сталь
- Тип камина: Встраиваемый
- Цвет: Сталь
- Стиль: Hi-Tech
- Обогреватель: Да
- Тип управления: Автоматический
- Тип питания: Электрический
- Масса, (кг): 110
- Гарантия, (лет): 2
- Стекло: В комплекте
- Защита от детей: Да
- Пульт ДУ: С пультом
- Защита от перегрева: Да
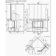
- Ширина, (мм): 2500
- Глубина, (мм): 530
- Высота, (мм): 400
- Габаритные размеры ШxГxВ, (мм): 2500x530x400
- Мощность (кВт): 11
- Страна производства Бельгия
- Модель: Nippon NI G6 H1
Стоит ли покупать биокамин Газовый камин Vero Design Nippon NI G6 H1
доставка осуществляется за наш счёт.
Мы сотрудничаем с транспортными компаниями:








Доставка по Дзержинск
При заказе от 50 000 рублей и предоплате 100% доставка осуществляется бесплатно
Срок доставки 1-3 дня
Самовывоз по Дзержинску
Самовывоз осуществляется по адресу:
г. Дзержинск, Красноармейская ул., 3А
Перед приездом просим Вас заранее нам позвонить по телефону +7-800-100-10-78, что бы мы успели подготовить Ваш заказ.
После выбора товара нажмите кнопку «В корзину» – товар добавится в вашу корзину.
Далее, если вы закончили выбирать товар, нажмите кнопку «Ваша корзина».
На странице «Ваша корзина» будут перечислены все выбранные вами товары.
В поле «Количество» вы можете изменить количество товара для покупки. После изменения количества товара необходимо
нажать кнопку «Пересчитать» для пересчета итоговой суммы заказа.
В колонке «Действия» над каждым товаром можно произвести следующие действия: либо удалить товар из корзины, либо
товар на будущее.
Также можно ввести код скидки в соответствующее поле.
После ввода необходимой информации о доставке товара (ФИО получателя, адрес доставки, контактные данные, вариант
доставки, способ оплаты и т.д.) для оформления заказа вам нужно нажать кнопку «Оформить заказ».
Копия заказа будет выслана на ваш e-mail, указанный при оформлении заказа.
Внимание! Неправильно указанный номер телефона, неточный или неполный адрес могут привести к дополнительной
задержке! Пожалуйста, внимательно проверяйте ваши персональные данные при регистрации и оформлении заказа.
Через некоторое время (обычно в течение часа) после оформления покупки, с вами свяжется наш менеджер по контактным
данным, указанным при оформлении заказа. С менеджером можно будет согласовать точное время и сроки доставки, а также
уточнить детали.
Примечание: Для постоянных клиентов на сайте магазина предусмотрена возможность регистрации. В своем кабинете вы
можете просмотреть содержимое корзины, историю своих заказов, а также повторить или отказаться от заказа, подписаться на
рассылку новостей магазина.
Цены, указанные на сайте, являются окончательными и не требуют доплат при стандартных условиях поставки. Все налоги
включены в стоимость товара.
Внимание! Для каждого отдельного заказа возможен только один способ оплаты на ваш выбор. Оплата заказа по частям
различными способами невозможна.
Возможные способы оплаты
Наличный расчет
Оплата производится наличными курьеру или в магазине при самовывозе. Вместе с товаром передается товарный и кассовый чеки, а также гарантийный талон
Безналичный расчет
Оплата производится наличными курьеру или в магазине при самовывозе. Вместе с товаром передается товарный и кассовый чеки, а также гарантийный талон
Индивидуальное проектирование
и изготовление
на собственном производстве
из металла, стекла, камня
Подробнее Почему нам доверяют
Мы можем гарантировать высокое качество наших биокаминов, поскольку самостоятельно производим все модели и тщательно контролируем каждый этап. Наши камины - безопасны и надежны, они станут отличным дополнением любой комнаты благодаря привлекательному внешнему виду и создадут неповторимую атмосферу уюта.
Создадим для Вас собственный, уникальный проект, который будет в единичном экземпляре и по своему уникальный! Мы всегда учитываем пожелания наших клиентов и трепетно относимся к каждой мелочи в заказе!
Осуществляется транспортными компаниями по вашему адресу "до двери" на основании данных о весе, объеме и расстоянии до Вашего города по расценкам перевозчика. При сумме заказа больше 50 000 рублей и 100% предоплате, доставка осуществляется бесплатно.
Мы всегда за то, чтобы к моменту оформления заказа Вы были уверены в том, что наш продукт подходит Вам на 100%! Поэтому, всегда готовы бесплатно предоставить услуги замерщика!
Помощь дизайнеров с многолетним опытом работы сделает ваш камин не только функциональным и безопасным, но и уникальным! Он красиво встроиться в интерьер и будет радовать вас и ваших близких долгие годы!
Возможен любой способ оплаты (наличными, безналично, картой). Возможно оформление рассрочки и кредита on-line.
Все порталы и топливные блоки изготовлены из высококачественных металлов на современном оборудовании с вниманием к деталям, что позволяет нам давать гарантию на корпус камина 10 лет.
Вопросы и ответы
<ul> <li>Горелки. Сжиженный газ сгорает в горелке, продукты распада, раскаляясь до высоких температур, обтекают радиатор, разогревая камин. Принцип работы схож с обычным кухонным духовым шкафом.</li> <li>Камины с беспламенной системой нагрева.В центре камина установлена инфракрасная горелка, которая отвечает за нагрев агрегата.</li> <li>Камины с катализаторными горелками. Смешиваясь с кислородом, газ из баллона не воспламеняется, а поддается процессу окисления на сетке катализатора, выделяя тепло низких температур. Самым безопасным газовым камином на баллонном газе считается тот, который работает на катализаторной горелке, поскольку температура в теплообменнике не превышает 240 ºС.</li> </ul>
При мощности оборудования для отопления жилья более 3 кВт/ч, необходимо сделать дымоотвод из стали или чугуна. Внешнюю часть дымохода требуется прикрыть минватой и закрыть специальным чехлом. Встраиваемые газовые камины с небольшой мощностью, приспособлены удалять продукты горения при помощи вентиляции. Для безопасности, в помещении, где установлен камин, в обязательном порядке должны быть датчики неполного сгорания пропана и сигнализационная система. У газовых каминов для дачи без дымохода, камера сгорания – закрытого типа. Такие камины работают по принципу задействования электроэнергии для корректной работы автоматической системы и вентилятора.
Чтобы обогреть 10 м2 необходимо затратить 1 кВт/с тепла. Таким образом, для двухкомнатного дома, каждая из которых имеет площадь 20 м2, необходимо приобрести газовый камин на 4 кВт. Расход баллонного газа в таких условиях будет составлять 0,75 л/ч. Таким образом, за выходные дни, грубо говоря, вы потратите 36 л пропана, что не так уж и много.
В газовых каминах используется Баллонный газ или Магистральный газ. Этот момент нужно учитывать при покупке, поскольку камины работающие, к примеру, на баллонном газе, не предназначены для работы с магистральным, и наоборот. Маркировкой N обозначают модели газовых каминов, работающих на природном газе. Маркировка P означает, что оборудование приспособлено для пропан-бутана.
1. Встраиваемые газовые камины. Для установки используют созданный собственноручно или готовый портал. Он изготавливается из огнеупорных материалов. 2. Уличный газовый камин – устанавливают на открытом воздухе в беседках, верандах. Монтаж дымоотвода не требуется. 3. Напольные газовый камин устанавливают на подготовленной подставке и подключают к дымоотводу. 4. Настенные крепят при помощи кронштейнов. Отличный вариант для тех, у кого есть маленькие дети или животные.
Азаров Алексей
Почему нам доверяют
Мы можем гарантировать высокое качество наших биокаминов, поскольку самостоятельно производим все модели и тщательно контролируем каждый этап. Наши камины - безопасны и надежны, они станут отличным дополнением любой комнаты благодаря привлекательному внешнему виду и создадут неповторимую атмосферу уюта.
Создадим для Вас собственный, уникальный проект, который будет в единичном экземпляре и по своему уникальный! Мы всегда учитываем пожелания наших клиентов и трепетно относимся к каждой мелочи в заказе!
Осуществляется транспортными компаниями по вашему адресу "до двери" на основании данных о весе, объеме и расстоянии до Вашего города по расценкам перевозчика. При сумме заказа больше 50 000 рублей и 100% предоплате, доставка осуществляется бесплатно.
Мы всегда за то, чтобы к моменту оформления заказа Вы были уверены в том, что наш продукт подходит Вам на 100%! Поэтому, всегда готовы бесплатно предоставить услуги замерщика!
Помощь дизайнеров с многолетним опытом работы сделает ваш камин не только функциональным и безопасным, но и уникальным! Он красиво встроиться в интерьер и будет радовать вас и ваших близких долгие годы!
Возможен любой способ оплаты (наличными, безналично, картой). Возможно оформление рассрочки и кредита on-line.
Все порталы и топливные блоки изготовлены из высококачественных металлов на современном оборудовании с вниманием к деталям, что позволяет нам давать гарантию на корпус камина 10 лет.
Индивидуальное проектирование
и изготовление
на собственном производстве
из металла, стекла, камня
Подробнее Товар представлен
в категориях
Эта модель представлена в разделах
Ранее вы смотрели
Габариты ШxГxВ (мм)
1020x380x955
Габариты ШxГxВ (мм)
990x340x925
Для всех регионов РФ

Скачать чертеж

